Copyright © 2018 Organizing Committee of The International Alliance for Sustainable Urbanization and Regeneration (IASUR). conference2019@iasur.org

Conference
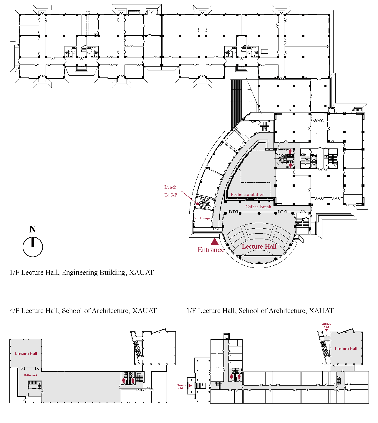
Venue

Access

Xi’an University of Architecture and Technology
Address: No.13, Yanta Road, Xi’an, Shaanxi, 710055, P.R.China
Tel: 86-29-82202169



By Plane
Xi'an Xianyang International Airport
- approximately 70 mins by Car
- approximately 90 mins by Airport Bus to High-speed Rail Station, from High-speed Rail Station take Line 4 to XAUAT

By Train
Xi’an High-speed Rail Station
- approximately 60 mins by Car
- approximately 60 mins by Line 2 to XingZhengZhongXin, from XingZhengZhongXin take Line 4 to XAUAT

Xi’an Rail Station
- approximately 30 mins by Car
- approximately 20 mins by Line 4

Accommodations
The prepared accommodations are within 10 minutes' walking distance from the venue.
- New Century Grand Hotel
- Tianyu Gloria Grand Hotel




For tours please see registration page